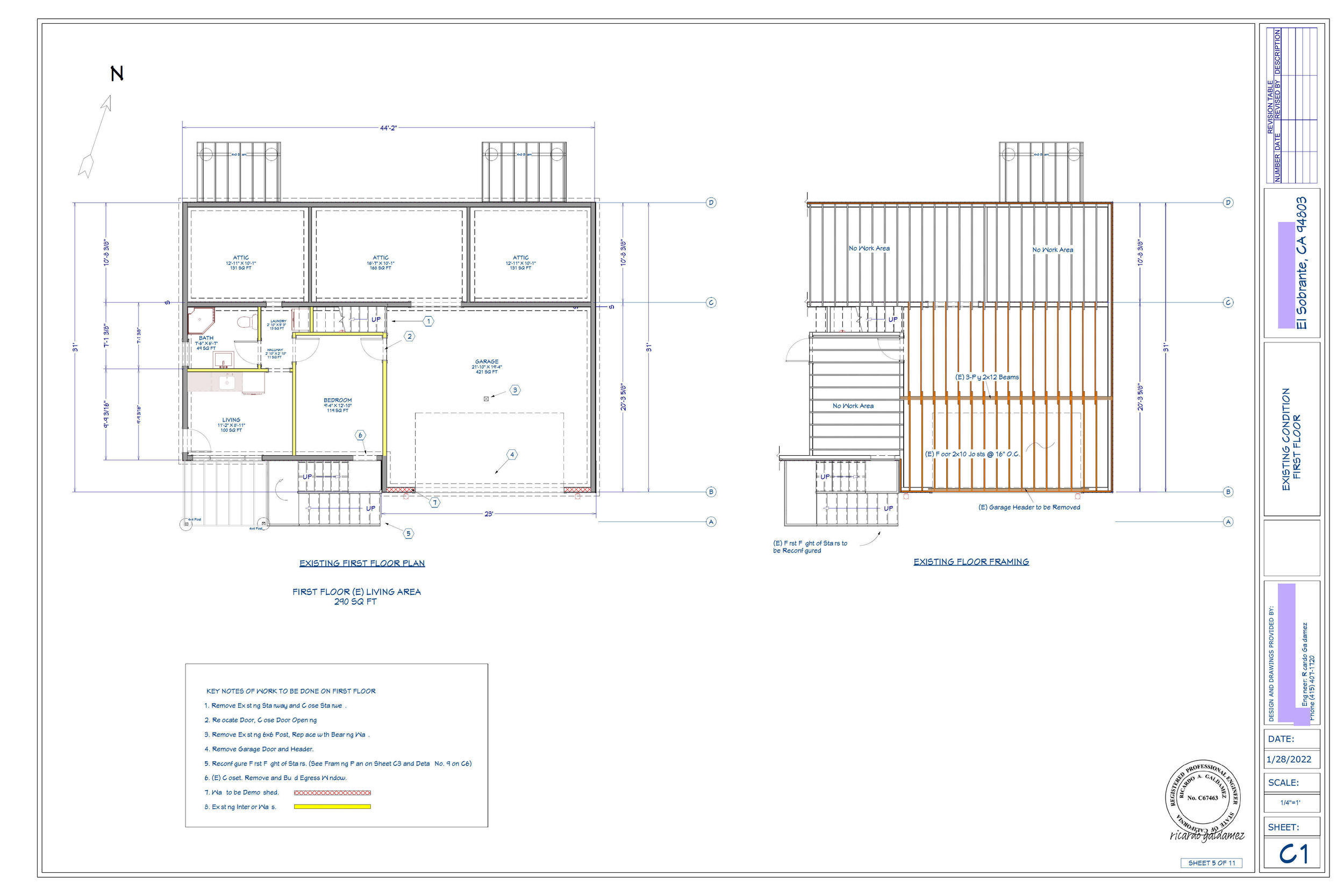
The garage of this home was converted into a Accessory Dwelling Unit (ADU). The structure was extended to provide additional interior space, accomodating a full kitchen, bathroom, living room, and a bedroom with a closet. This transformation created a modern, code compliant secondary dwelling designed for confort and functionality.




